Accommodation
The Housing Office offers accommodation for international students in Leiden and The Hague via DUWO student housing corporation.
You can learn more about Leiden University’s arrangements with DUWO on the DUWO website.
Accommodation types and facilities
Start by reading the information on accommodation types and facilities. Note that all accommodation is furnished.
Accommodation types and facilities
Accommodation types
- Rooms with communal kitchen and bathroom facilities:
- Single rooms
- Shared rooms: Intended for two independent students, each with their own housing contract.
- Studio apartments with own kitchenette and bathroom, and one area for sleeping/living:
- Single studio apartments
- Shared studio apartments: Intended for two independent students, each with their own housing contract. Facilities and sleeping/living area are shared with your fellow occupant.
- Double studio apartments: Intended for students accompanied by a partner or family member, rented via one housing contract. Facilities and sleeping/living area are shared with your fellow occupant.
Facilities
On the DUWO website you can find information about the facilities in each building and the standard room inventory.
Housing complexes
Next, take a look through our housing complexes listed below. You can view the location of each complex in relation to our faculty buildings on this handy map.
All rental prices stated include gas, water, electricity, internet and VAT. For full details see the fees, deposits and charges section. Note that rental prices are revised each year in July.
Leiden
Hugo de Grootstraat 32 - Horizon House: Rooms and apartments
Built between 1895 and 1907 as a pharmaceutical laboratory, this building was completely renovated and converted to student accommodation in 2005.
Accommodation in this building
|
Room type |
Monthly rent per person |
Number of rooms available |
|
Single room at semi-basement level |
€ 515 - € 585 |
9 |
|
Single room |
€ 565 - € 735 |
56 |
|
Shared room |
€ 405 - €420 |
4 |
Semi-basement level: Partially below ground level, with high windows at pavement level.
View floorplan of Hugo de Grootstraat 32
-
Hugo de Grootstraat: entrance -
Hugo de Grootstraat: hallway -
Hugo de Grootstraat: bicycle parking -
Hugo de Grootstraat: single room -
Hugo de Grootstraat: single room -
Hugo de Grootstraat: single room -
Hugo de Grootstraat: single room -
Hugo de Grootstraat: shared room -
Hugo de Grootstraat: common room, ground floor -
Hugo de Grootstraat: common room, ground floor -
Hugo de Grootstraat: common room, first floor -
Hugo de Grootstraat: common room, first floor -
Hugo de Grootstraat: common room, third floor -
Hugo de Grootstraat: common room, third floor
Hooigracht/Kloosterpoort/Middelstegracht: Apartments only
This complex, built in 1892 as the Elisabeth Hospital, contains 200 modern self-contained studio apartments. In 2007 it was completely renovated but retains many original features, including an enclosed garden.
Note: there is a bar located on the ground floor of this complex, which is open till late and hosts a monthly disco. This can result in some noise disturbance for the apartments above.
Accommodation in this building
|
Apartment type |
Monthly rent |
Number of apartments |
|
Single studio apartment |
€ 650 - € 875 |
178 |
|
Double studio apartment |
€ 865 - € 955 |
6 |
|
Shared studio apartment |
€ 455 - € 575 |
14 |
Note: Some single studio apartments have loft beds, i.e. raised beds with living space beneath them.
View floorplan of Hooigracht/Kloosterpoort
Smaragdlaan: Apartments only
This complex, built in 1978, contains a number of one-room studio apartments. It is located near a shopping mall, sports facilities and the motorway, about 15 minutes cycle ride from Leiden city centre. Public transport is available.
Accommodation in this building
|
Room type |
Rent per person |
Number of apartments |
|
Shared studio apartment |
€ 405 - € 435 |
61 |
|
Single studio apartment |
€ 740 |
4 |
| *MIVA shared studio apartment | € 870 | 1 |
*MIVA: wheelchair friendly
View floor plan of Smaragdlaan
-
Smaragdlaan: exterior -
Smaragdlaan: shared studio apartment -
Smaragdlaan: shared studio apartment -
Smaragdlaan: shared studio apartment -
Smaragdlaan: shared studio apartment -
Smaragdlaan: kitchen
Oranjelaan: Rooms only
This complex, built in 1930, is located in Oegstgeest, a small town adjacent to Leiden. It is 10 minutes cycle ride from the Faculty of Social and Behavioural Sciences.
Accommodation in this building
|
Room type |
Monthly rent per person |
Number of rooms available |
|
Single room |
€ 435 - € 650 |
23 |
|
Shared room |
€ 425 |
2 |
-
Oranjelaan: exterior -
Oranjelaan: exterior -
Oranjelaan: common room -
Oranjelaan: single room -
Oranjelaan: single room -
Oranjelaan: single room -
Oranjelaan: single room -
Oranjelaan: shower
De Zeven Provinciën ‘Hofflants Huys’: Rooms and apartments
Hofflants Huys is a former old people’s home that has recently been renovated and transformed into a modern student housing complex. It contains almost 150 rooms and studio apartments. There are also common rooms and laundry facilities for tenants. Hofflants Huys is located in the pleasant village of Voorschoten, which is only 15 minutes by bike and 9 minutes by train from Leiden, and 13 minutes by train from The Hague.
Note: All apartments in this complex have recently been refurbished. The final steps in the refurbishment process will continue until autumn 2020, which means construction workers may be present and tenants may experience some noise disturbance or inconvenience.
Accommodation in this building
|
Room type |
Monthly rent per person |
Number of rooms available |
|
Single studio apartment |
€ 705 - € 775 |
93 |
| Single room (with ensuite bathroom) | € 565 - € 650 | 47 |
View floor plan of Hofflants Huys
-
Hofflants Huys: exterior -
Hofflants Huys: single studio apartment -
Hofflants Huys: single studio apartment -
Hofflants Huys: single studio apartment -
Hofflants Huys: kitchen -
Hofflants Huys: bathroom -
Hofflants Huys: balcony
Sigmaplantsoen: Rooms and apartments
The Sigmaplantsoen is located in a new housing ‘campus’ only 10 minutes cycle ride from Leiden city centre, close to Lammenschans train station. This modern complex consists of two large accommodation blocks offering student housing for several local institutions, as well as affordable private accommodation for young people. The ‘campus’ has been designed with the environment in mind and is equipped with both solar panels and a heat recovery system. Tenants can make use of laundry facilities (which can be reserved in advance online) and secure bicycle parking.
Accommodation in this building
|
Room type |
Monthly rent per person |
Number of rooms available |
|
Single studio apartment |
€ 705 |
80 |
| Single room in a 2 room unit | € 505 | 22 |
Floor plans
- Apartment type 1A
- Apartment type 1B
- Apartment type 1D
- Apartment type 1F
- Apartment type 1G
- Single room type 2A
- Single room type 2B
-
Sigmaplantsoen: exterior -
Sigmaplantsoen: exterior -
Sigmaplantsoen: exterior -
Sigmaplantsoen: hallway -
Sigmaplantsoen: bicycle parking -
Sigmaplantsoen: single studio apartment -
Sigmaplantsoen: single studio apartment -
Sigmaplantsoen: single rooms in a 2 room unit -
Sigmaplantsoen: single rooms in a 2 room unit -
Sigmaplantsoen: bathroom
The Hague
Enthovenplein 'De Klok': Rooms only
This complex was purpose built as student accommodation for Leiden University in 2011. It is located by The Hague’s Hollands Spoor train station, two kilometers from the city centre. The university campus can be reached in 10 minutes by bike or tram. There are several other student housing complexes in this area.
Accommodation in this building
|
Room type |
Monthly rent per person |
Number of rooms |
|
Shared room in a 3 room unit |
€ 430 |
21 (= 42 places) |
|
Single room in a 2 room unit |
€ 570 - 615 |
24 |
|
Single room in a 4 room unit |
€ 605 |
20 |
View floor plan of Enthovenplein 'De Klok'
-
Enthovenplein: single room
Stamkartstraat: Apartments only
This complex, built in 2010, contains 122 units and a common room. It is located by The Hague’s Hollands Spoor train station, two kilometers from the city centre. The university campus can be reached in 10 minutes by bike or tram. There are several other student housing complexes in this area.
Note: In the period 2020/2021 there will be building activities in this area. This may result in some noise disturbance on weekdays and the occasional Saturday between 07:00 and 19:00.
Accommodation in this building
|
Room type |
Monthly rent |
Number of apartments |
|
Single studio apartment |
€ 640 |
121 |
| *MIVA double studio apartment | € 860 | 1 |
MIVA: wheelchair-friendly
View floor plan of Stamkartstraat
-
Stamkartstraat: single studio apartment -
Stamkartstraat: single studio apartment -
Stamkartstraat: common room -
Stamkartstraat: common room
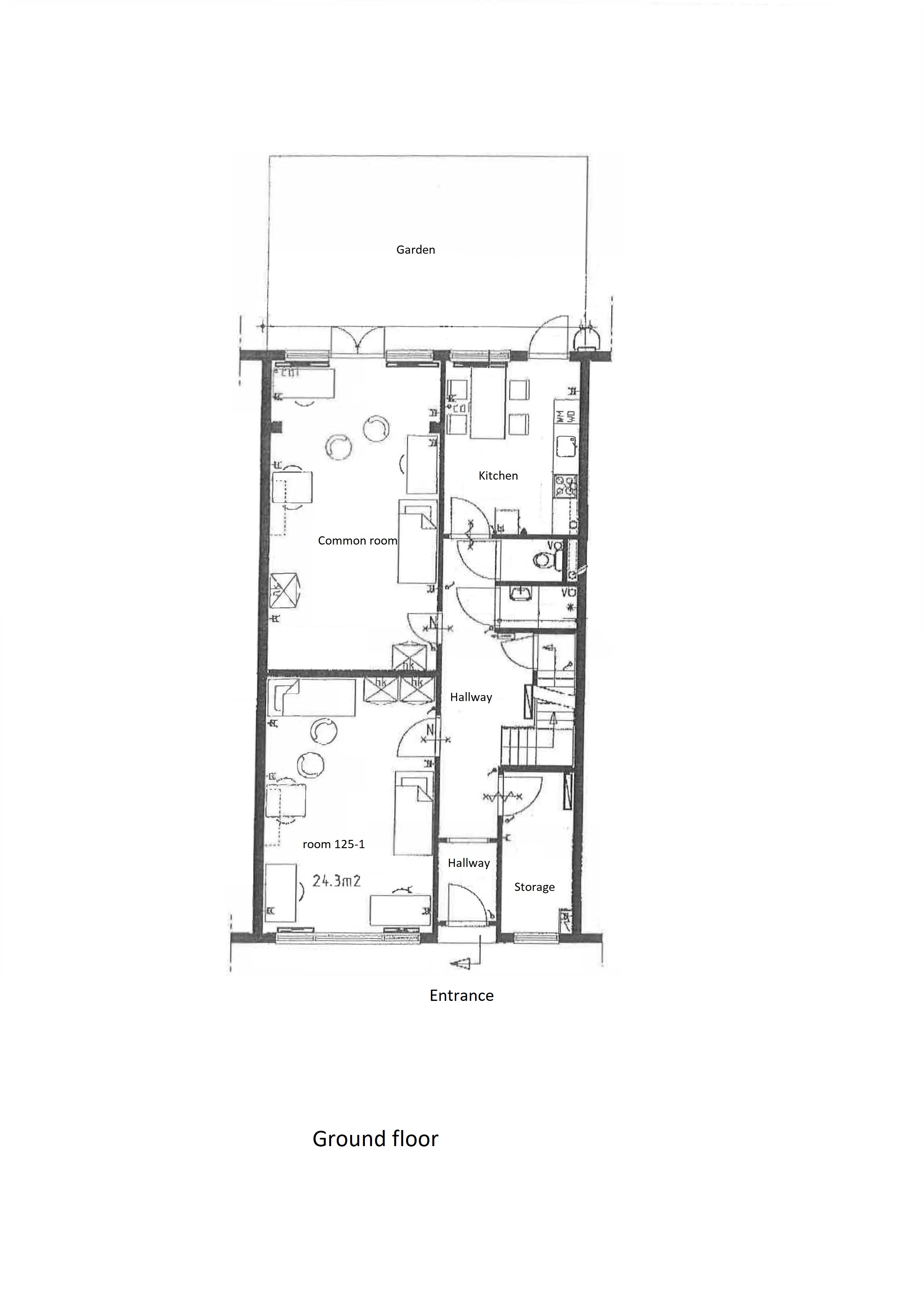
Statenlaan: Rooms only
This complex contains 9 individual rooms and a common room. It is located in the Statenlaan neighbourhood, less than two kilometers from the beach. The university campus can be reached in 20 minutes by bike or tram.
Accommodation in this building
|
Room type |
Monthly rent |
Number of rooms |
|
Single rooms |
€ 425 - € 595 |
9 |
- View floor plan - Statenlaan ground floor
- View floor plan - Statenlaan first floor
- View floor plan - Statenlaan second floor
-
Statenlaan: exterior -
Statenlaan: single room -
Statenlaan: single room -
Statenlaan: kitchen -
Statenlaan: garden
Leemanstoren: Apartments only
The newly-built Leemanstoren (Leemans tower) is conveniently located close to The Hague’s Hollands Spoor train station. The university campus can be reached in 10 minutes by bike or tram. The tower contains a number of self-contained studio apartments, each of 21 m2, with their own kitchen and bathroom. There is also a common room, laundry facilities and secure bicycle parking for tenants.
Accommodation in this complex
|
Room type |
Monthly rent |
Number of rooms |
|
Single studio apartment |
€650 | 74 |
-
Leemanstoren: studio apartment -
Leemanstoren: single studio apartment -
Leemanstoren: single studio apartment
Local taxes in The Hague
Please note that rental prices in The Hague exclude taxes that may be levied by The Hague municipality and water authority. See fees, deposits and charges for full details.
Residence Life Programme
At most of our accommodation complexes for international students we offer the Residence Life Programme. The goal of this programme is to help international students feel happy and at home in Leiden.
Read more about the Residence Life Programme.
Students with a disability
If you have a disability you may require additional facilities in your living environment. Finding suitable accommodation can be time-consuming, so please contact the Housing Office as early as possible for advice. Also visit our webpages about studying with a disability or contact Fenestra Disability Centre.